Приватний будинок у селищі Золоче

Реалізація
Реалізація
Олена Терехова
Віталія Баркар
Антон Шургальський

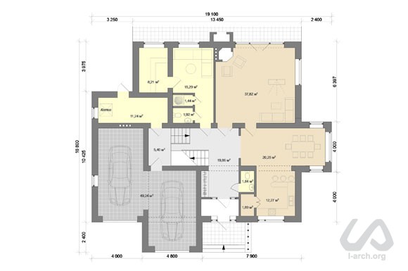
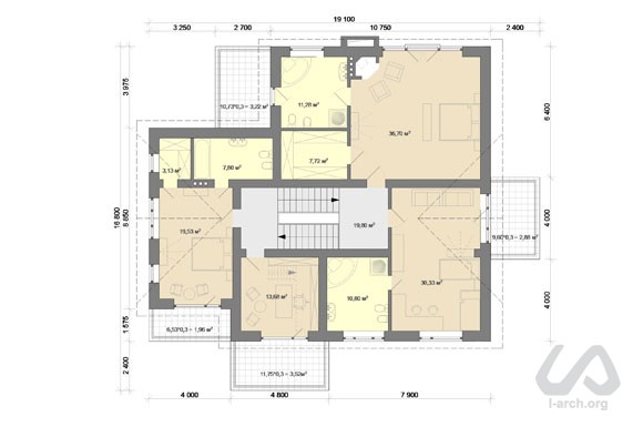
Об’єкт у селищі Золоче КиївськоЇ області із самого початку проектувався заради продажу. В цьому випадку ми намагалися відійти від звичного для замовника класичного стилю і зробити затишний і в той самий час якомога сучасніший для нинішньої України будинок. Функціональні планування, поверхи на піврівня, приміщення оптимальних пропорцій та площ – усе це надає якість тій основі, на якій майбутній покупець згодом зможе висловити свою індивідуальність.

Реалізація План першого поверху План другого поверху Західний фасад Головний фасад Південний фасад Погляд на головний фасад Погляд на головний фасад Погляд на фасад із терасою Реалізація Реалізація