Приватний будинок-дача у селищі Макарів

Вигляд з боку дороги на момент будівництва
Вигляд з боку дороги на момент будівництва
Олена Булавко

Від початку замовник проекту хотів збудувати у селищі Макарів Київської області просту дачу для літнього відпочинку – без урахування місця, орієнтації по сторонах світу та функціонального зонування. Завдяки порадам друга-архітектора будівлю було правильно зорієнтовано, а сама вона набула довершеної, лаконічної форми. Будинок звернено у бік в’їзду до селища і простором вітальні він виступає у бік близького соснового лісу. «Пляма» будинку є мінімальною: у цокольному поверсі знаходиться господарча частина, на першому поверсі – кухня та двосвітлова вітальня. На верхньому рівні розташувалися балкон-бібліотека та спальна кімната. Будівлю огортає крило-веранда, на якій вільно розмітитися як власне господарям, так і великій кількості їхніх друзів, які мешкають поруч. Дещо пізніше на тій самій ділянці господар розпочав будівництво двосвітлової майстерні із кімнатою для гостей.

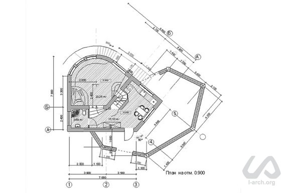
Вигляд з боку дороги на момент будівництва План першого поверху План другого поверху Фасад з боку тераси Північний фасад Аксонометрія. Схема крокв Вигляд з боку вітальні на момент будівництва Вигляд головного та гостьового будинків на момент будівництва Погляд на головний і гостьовий будинок Гостьовий будинок - майстерня Погляд з боку під'їзду до будинку Погляд на будинок з північного боку Погляд на будинок і веранду з боку входу Погляд на ліс з-під навісу веранди