Комплекс житлових будинків у селищі Підгірці

Будинок на 370 кв.м. Вигляд з боку тераси
Будинок на 370 кв.м. Вигляд з боку тераси
Луїджі Ф'юмара
Олена Булавко
Олена Терехова
Віталія Баркар
Антон Черкашин
Наталія Харкова
Світлана Семенова
Вадим Бублій

Проект комплексу в селищі Підгірці Київської області складається із чотирьох типів будинків на одну родину площею 270, 300, 340 та 370 кв.м; загальна кількість будинків – 27. Територію селища оточено каналом, що омиває більшість ділянок і тим покращує якість ландшафту. Будинки із самого початку проектувалися як звужені з боку вулиці й більш відкриті у напрямку каналу та саду. Фасади й вибір материалів – дерев'яна обшивка, пофарбована штукатурка, природний камінь – відповідають прагненню передати відчуття не лише домашнього тепла та захищеності, але й унікальності та візуального розмаїття. Вигляд усіх будинків, створених за проектом, характерний індивідуальними особливостями; самі об'єкти розташовані на місцевості у спосіб, що виключає появу подібних між собою будинків на сусідніх ділянках. Відстані між об'єктами та вулицею варіюють – це допомагає створити відчуття руху. Всередині будинки характерні нестандартністю планування, метою якої є формування простору – динамічного та більш індивідуального для мешканців кожної з кімнат.

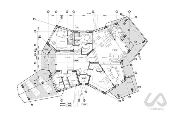
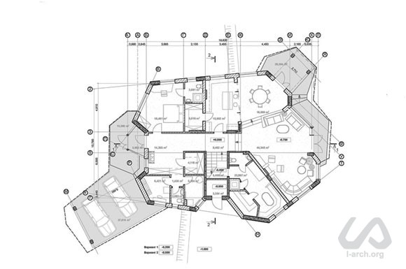
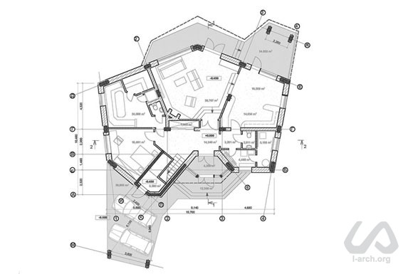
Будинок на 370 кв.м. Вигляд з боку тераси Будинок на 370 кв.м. Вигляд з боку сада Будинок на 370 кв.м. Головний фасад Будинок на 370 кв.м. План першого поверху Комплекс житлових будинків у селищі Підгірці Будинок на 270 кв.м. Головний фасад Будинок на 270 кв.м. План першого поверху Будинок на 270 кв.м. Вигляд головного входу Будинок на 270 кв.м. Вигляд з боку тераси Будинок на 300 кв.м. Головний фасад Будинок на 300 кв.м. Вигляд головного входу Будинок на 300 кв.м. Вигляд з боку тераси Будинок на 300 кв.м. Головний фасад Будинок на 340 кв.м. План першого поверху Будинок на 340 кв.м. Вигляд головного входу Будинок на 340 кв.м. Вигляд з боку тераси