Загородный дом в посёлке Золоче (2)

Гостиная комната.
Гостиная комната.
Елена Булавко
Елена Терехова
Виталия Баркар
Лидия Апанасенко
Алена Кустовская

Комплексный проект интерьера дома в посёлке Золоче Киевской области разрабатывался с условием дальнейшей продажи объекта. В связи с этим характер пространства предусматривает мягкие и светлые цветовые сочетания, нейтральный характер линий, оптимально-удобное зонирование. Главной задачей в решении интерьера было создание пространства дома, максимально приятного для любого человека вне зависимости от типа темперамента, эстетических предпочтений и возраста. Сейчас объект находится в стадии реализации.

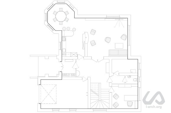
Гостиная комната. Гостиная комната. Эскиз План первого этажа План второго этажа Ванная комната хозяев Ванная комната хозяев. Эскиз Гостиная комната  Гостиная комната Кабинет Столовая зона и кухня Кухня Холл второго этажа