Наши услуги
Архитектура
Интерьеры
Лессировка
Объектный дизайн
Органический подход
Деятельность
Контакты
Наши друзья
Home
»
Частные дома
»
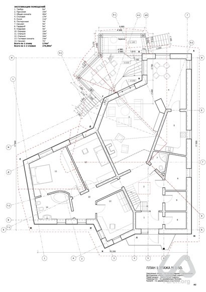
Частный дом, Юровка
Eng
Укр
Рус
Интерьер и решение фасадов частного дома, Юровка
Елена Булавко
Виталия Баркар
Артем Новак
Светлана Забуранная
Следующий
find us on facebook