Саманный дом в деревне Богатое Ущелье

Боковой фасад в процессе строительства
Боковой фасад в процессе строительства
Ирина Билецкая

Заказчиком выступил музыкант, которому было необходимо уединённое место для творчества. На участке в живописной долине Горного Крыма находился старый татарский дом, построенный из саманных кирпичей. Габариты этого строения необходимо было сохранить, и при этом обеспечить наличие внутри большой гостиной-студии – места для музицирования и общения с друзьями. Ещё одним пожеланием заказчика было использование натуральных строительных материалов, таких как камень и дерево. Стены дома сделаны из самана – смеси глины, песка, соломы и конского навоза. Основные очертания старого дома сохранилась, а вот внутреннее содержание было преобразовано. Благодаря большими окнам и свободной планировке обновлённый дом стал светлым и просторным; ощущению свободного пространства способствуют также обширные ниши в стенах, встроенная саманная мебель и отделка стен местной глиной и песчаником.

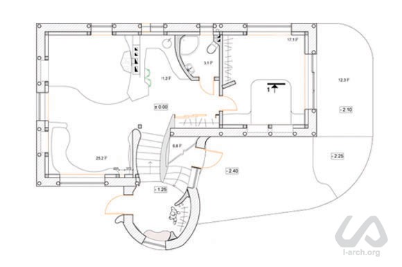
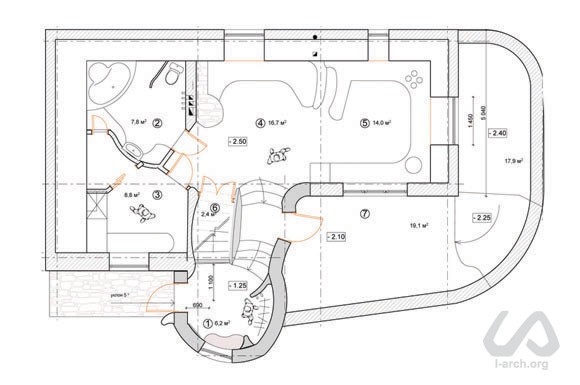
Боковой фасад в процессе строительства Эскиз входной группы План первого этажа План второго этажа Главный фасад, предложение Главный фасад Главный фасад в процессе строительства Ниша в стене