Reconstruction of a private house, Chernihiv

View from the garden
View from the garden
Olena Bulavko
Vitaliia Barkar
Lidia Apanasenko
Anton Shurgalskiy

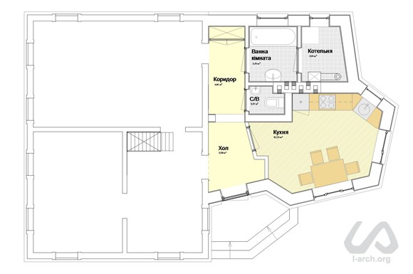
This house is located in the private sector of Chernihiv. Its owners decided to add  to the existing good-quality wooden building a kitchen and dining area, projecting towards the garden. The new  volume organizes a pleasant courtyard entrance to the house and gives life to the static nature of the old building. Since the new part was planned in masonry, the elevations have been partly covered  in wood, in order to connect old and new without conceiling the difference between them.

View from the garden Ground floor plan The building before the reconstruction (winter 2009) View of the entrance side Main elevation Elevation Elevation