Private house with green roof

House under construction
House under construction
Iryna Biletska
Anton Shurgalskiy
Taras Palatnyj

The customer had already made his own vison of the project for his future house. we basicly only helped formalize its representation in the correct graphical form.

The project mood was taken from a book about the ranch in the U.S., with a pictures of romantic life on the wild.
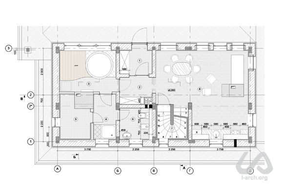
The house has a simple rectangular shape. The customer decided to build a house by himself, without resorting to the services of contractors, that's why for the structure of the house construction it was necessary to make it simple and clear. Since the house is to be built in a series, it has a generic set of functions for a comfortable stay for every family of 3-4 people.

The Customer's love to the traditions of Ukrainian architecture allowed us to bring into the project some regional features. Thus, in one of the modifications of the house, covering the roof will be made of wood. In another house he manifested the desire and courage to experiment in the field of natural building materials - green roof and soil the floor, another trial step is assembling the Deaf windows without frames directly into the walls. All houses will be finished within a clay plaster to maintain optimal moisture conditions.

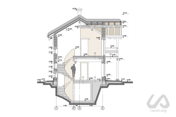
The house is supposed to have Wood stove heating, and partially solar heating. For us the ecological sustainability of our projects is very important, that's why we are trying to use renewable sources of energy. The main windows at home goes on the south facade, the gallery and wide eaves protecting it from overheating in summer and allowing to enter to the house demi-season and low winter sun.

House under construction House under construction South elevation Ground floor plan South elevation. Sketch Section House under construction House under construction House under construction House under construction House under construction