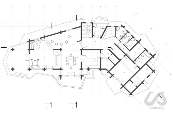
Log house, Alexandrovka village, region of Chernihiv

Main view
Main view
Danylo Kosenko

The house stands in a wide-open field and faces a small lake. The shape in plan derives from the adaptation to the presence of the lake and to the will of creating a protected space between the building and the waterside. The architects took on the challenge of designing a moved building in spite of the stiffness of the log construction. According to the personality of the client, the house shows rather strong and sharp forms and a dynamic development from the two-storey part towards the one-storey volume of the living room. The project includes also a house for servants, a sauna, a horse-shed and a covered sitting place.

Main view View from the forest Interior Main elevation (sketch)